18.08.2025
Opublikowano informację o wynikach rozstrzygnięcia Konkursu.
Oficjalna Informacja o wynikach rozstrzygnięcia Konkursu Kampus UW
I NAGRODA
pieniężna w wysokości 50 000,00 zł brutto oraz w Nagroda w postaci zaproszenia do negocjacji w trybie zamówienia z wolnej ręki na wykonanie usługi na podstawie wybranej Pracy konkursowej zostaje przyznana:
Pracy konkursowej o Numerze identyfikacyjnym Uczestnika 006
(Numer nadany przez Sekretarza Konkursu: 003)
Uczestnicy Konkursu wspólnie biorący udział w Konkursie
- Pracownia Architektoniczna 1997 Sp. z o.o.
ul. Strusia 10
60-711 Poznań - Gąska Wojcieszak Pracownia Architektoniczna Sp. z o. o.
ul. Stary Rynek 95/96
61-773 Poznań
Skład zespołu autorskiego:
Krzysztof Frąckowiak (Osoba posiadająca uprawnienia budowlane do projektowania w specjalności architektonicznej bez ograniczeń wymagana warunkami Konkursu), Rafał Hodyra, Aleksandra Kornecka, Magda Lelonkiewicz, Łukasz Gąska, Mirosław Wojcieszak, Kornel Kuzański,
Współpraca autorska: Teresa Bączkiewicz, Kasia Woźniak.
Informacja i opinia o Pracy konkursowej 006
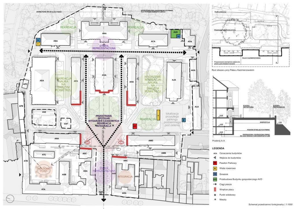
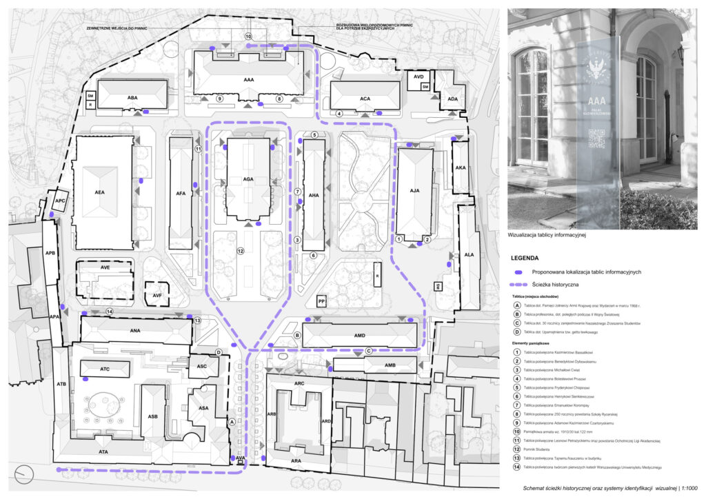
Praca wyróżnia się poszanowaniem dla historycznego układu komunikacyjnego, przy jednoczesnym przekształceniu go w układ przyjazny pieszym. Autorzy przekształcają przestrzeń Kampusu w sposób wyważony, unikając działań rewolucyjnych czy to w zagospodarowaniu układu komunikacyjnego czy zieleni. Zaproponowano spójną estetycznie małą architekturę i system informacji wizualnej oraz ciekawy system modułowego, ruchomego umeblowania głównego placu, umożliwiający jego łatwą rearanżację w zależności od potrzeb chwili. Wątpliwości budzi propozycja pawilonu, stwarzająca wyzwanie realizacyjne i eksploatacyjne.
Uzasadnienie przyznania I Nagrody Pracy konkursowej 006
Pracy nr 006 przyznano I Nagrodę za najlepszą propozycję zagospodarowania bardzo wymagającego terenu Kampusu UW przy Krakowskim Przedmieściu. Praca najlepiej odpowiada na potrzeby rozwoju – przekształcenia przestrzeni Kampusu z uwzględnieniem uwarunkowań historycznych, programowych, użytkowych i ekologicznych. Ma także walor wykonalności i przewidywalności kosztów eksploatacji, przy uwzględnieniu wymogów dostępności, infrastruktury podziemnej, elastyczności użytkowania czy etapowania inwestycji.
Praca konkursowa w pierwszym głosowaniu nad wyborem Prac do dalszej oceny uzyskała w ramach kryteriów oceny liczbę głosów (punktów) 10 (dziesięć) na 10 głosujących Sędziów w związku z czym przeszła do dalszej oceny. Praca konkursowa w głosowaniu nad przyznaniem I Nagrody pieniężnej uzyskała w ramach kryteriów oceny liczbę głosów (punktów) 6 (sześć) na 11 głosujących Sędziów. Głosowanie dotyczyło trzech Prac o Numerach identyfikacyjnym Uczestnika 006, 008 i 007.
Uwagi pokonkursowe do Pracy konkursowej 006
- Należy przeanalizować kwestię rozdzielenia ruchu pieszego od kołowego, w szczególności w miejscach najintensywniejszego ruchu pieszego (wprowadzenie chodników pieszych);
- Należy przemyśleć pasywną ochronę pawilonu przed przegrzewaniem, np. w postaci wysuniętego zadaszenia oraz kwestię bezpieczeństwa jego użytkowania (ryzyko przypadkowego uszkodzenia szklanych tafli od zewnątrz). Zaproponowana forma pawilonu nie daje przechodniom możliwości m.in. schronienia się przed słońcem i przelotnym deszczem;
- Należy skorygować lokalizację projektowanych drzew tak aby nie przesłaniały widok na fasadę frontową BUW od strony głównego placu.
- Należy przemyśleć zróżnicowani układu kostki (rysunku nawierzchni) na głównym placu;
- Należy rozważyć zmiękczenie geometrycznego charakteru alejek na tyłach Pałacu;
- Należy rozważyć wprowadzenie ruchu rekreacyjnego w obszar zielonego skweru przed Budynkiem Pomuzealnym;
- Należy powiększyć pomieszczenie śmietnika w projektowanym budynku gospodarczym.
PREZENTACJA I NAGRODA
Praca konkursowa 006




CZĘŚĆ OPISOWA Praca konkursowa 006
Opracowanie studialne do Pracy konkursowej 006




II NAGRODA
pieniężna w wysokości 30 000 zł brutto zostaje przyznana:
Pracy konkursowej o Numerze identyfikacyjnym Uczestnika 007
(Numer nadany przez Sekretarza Konkursu: 002)
Uczestnik Konkursu samodzielnie biorący udział w Konkursie:
RS Architektura Krajobrazu Dorota Rudawa
ul. Przyrzecze 3905-510
Konstancin – Jeziorna
Skład zespołu autorskiego:
Piotr Gasparski (Osoba posiadająca uprawnienia budowlane do projektowania w specjalności architektonicznej bez ograniczeń wymagana warunkami Konkursu), Agnieszka Gasparska, Joanna Szulczyk, Aleksandra Gajewska, Patryk Zaręba, Iryna Tsymanovich
Informacja i opinia o Pracy konkursowej 007
Praca przedstawia staranne i wyczerpujące opracowanie, cechujące się dużą szczegółowością rozwiązań oraz dobrymi decyzjami komunikacyjnymi. Autorzy w atrakcyjny sposób operują zielenią, choć wątpliwości budzi nadmierne przesłonienie eksponowanych fasad budynków. Wart wspomnienia jest także logicznie zaprojektowany system zagospodarowania wód deszczowych. Na uwagę zasługuje oryginalna, lecz harmonizująca z otoczeniem forma pawilonu, a także elegancka i spójna propozycja systemu informacji wizualnej. Wątpliwości budzą natomiast zbyt różnorodne i kontrastujące z charakterem Kampusu formy małej architektury oraz duża liczba zastosowanych rodzajów posadzek.
Uzasadnienie przyznania II Nagrody Pracy konkursowej 007
Pracy nr 007 przyznano II Nagrodę za bardzo dobrą propozycję zagospodarowania terenu Kampusu, która właściwie odpowiada na trudne do pogodzenia uwarunkowania przekształcania jego przestrzeni. Praca właściwie kształtuje elementy zagospodarowania przestrzeni – plac główny i przestrzenie pomiędzy budynkami, z uwzględnieniem wytycznych konserwatorskich, użytkowych i eksploatacyjnych. Praca pozwala na realizację z uwzględnieniem elastyczności i etapowania realizacji zagospodarowania terenu kampusu.
Praca konkursowa w pierwszym głosowaniu nad wyborem Prac do dalszej oceny uzyskała w ramach kryteriów oceny liczbę głosów (punktów) 7 (siedem) na 10 głosujących Sędziów w związku z czym przeszła do dalszej oceny.
Praca konkursowa w głosowaniu nad przyznaniem II lub III Nagrody pieniężnej uzyskała w ramach kryteriów oceny liczbę głosów (punktów) 7 (siedem) na 11 głosujących Sędziów.
Głosowanie dotyczyło dwóch Prac o Numerach identyfikacyjnym Uczestnika 008 i 007.
Uwagi pokonkursowe do Pracy konkursowej 007
- Należy Rozważyć rezygnację z dodatkowych nasadzeń przed Pałacem Kazimierzowskim oraz budynkami Porektorskim i Poseminaryjnym z uwagi na kwestię kolizji z sieciami, brakiem dostatecznej przestrzeni na „przekładki” infrastruktury podziemnej a także obostrzeń konserwatorskich. Dla projektowanych drzew kolidujących z infrastrukturą podziemną należy zaproponować układ przebudowy sieci wraz z oszacowaniem kosztów;
- Należy skorygować lokalizację projektowanych drzew tak aby nie przesłaniały widok na fasadę frontową BUW od strony głównego placu.
- Należy przeanalizować możliwość dodania większej liczby miejsc postojowych;
- Należy rozwiązać problem nieprzepisowo i niefunkcjonalnie ulokowanych miejsc postojowych wzdłuż elewacji budynku Szkoły Głównej;
- Należy przemyśleć zasadność stosowania dużej różnorodności form małej architektury.
- Należy powiększyć przestrzeń użytkową pomieszczenia gospodarczego.
PREZENTACJA II NAGRODA
Praca konkursowa 007




CZĘŚĆ OPISOWA Praca konkursowa 007
Opracowanie studialne do Pracy konkursowej 007




III NAGRODA
pieniężna w wysokości 20 000 zł brutto zostaje przyznana:
Pracy konkursowej o Numerze identyfikacyjnym Uczestnika 008
(Numer nadany przez Sekretarza Konkursu: 001)
Uczestnik Konkursu samodzielnie biorący udział w Konkursie:
Karol Żurawski, pracownia projektowa
ul. Hauke Bosaka 25
01-540 Warszawa
Skład zespołu autorskiego:
Karol Żurawski (Osoba posiadająca uprawnienia budowlane do projektowania w specjalności architektonicznej bez ograniczeń wymagana warunkami Konkursu), Szymon Chwazik
Informacja i opinia o Pracy konkursowej 008
Praca przedstawia czystą i konsekwentną wizję przekształcenia Kampusu Głównego przy użyciu oszczędnych i spójnych środków wyrazu. Autorzy uszanowali historyczny układ komunikacyjny, przekształcając istniejące jezdnie w ciągi pieszo-jezdne, a zbędne chodniki zamieniając na powierzchnię zieleni. Zaproponowano prosty i skuteczny sposób retencji wód opadowych z głównych przestrzeni do dużej niecki bioretencyjnej, jednakże zabrakło przekonującej wizji, jak to założenie działa w okresie suchym. Wizja dzikiego, bujnego parku – ogrodu może urzekać, ale budzi wątpliwości eksploatacyjne, a ponadto ogromna liczba nasadzeń nadmiernie przesłania zabytkowe walory architektury Kampusu. Na uznanie zasługuje natomiast szlachetna i znakomicie współgrająca z otoczeniem architektura obydwu zaproponowanych pawilonów. Czyste i dojrzałe podejście do małej architektury i systemu informacji wizualnej nie zostało niestety wyczerpująco zaprezentowane.
Uzasadnienie przyznania III Nagrody Pracy konkursowej 008
Pracy nr 008 przyznano III Nagrodę za pociągającą wizję przekształcenia przestrzeni Kampusu Głównego UW w krajobrazowo kształtowany park-ogród. Takie bezkompromisowe kreowanie romantycznej wizji Kampusu wymaga jednak bardzo przemyślanych i technicznie uzasadnionych decyzji projektowych. Takiego uzasadnienia, w formie koncepcyjnych propozycji, w ocenie Sądu konkursowego zabrakło.
Praca konkursowa w pierwszym głosowaniu nad wyborem Prac do dalszej oceny uzyskała w ramach kryteriów oceny liczbę głosów (punktów) 5 (pięć) na 10 głosujących Sędziów w związku z czym przeszła do dalszej oceny.
Praca konkursowa w drugim głosowaniu nad wyborem Prac do przyznania I, II i III Nagrody uzyskała w ramach kryteriów oceny liczbę głosów (punktów) 8 (osiem) na 10 głosujących Sędziów w związku z czym przeszła do dalszej oceny. Głosowanie dotyczyło dwóch Prac o Numerach identyfikacyjnym Uczestnika 008 i 003.
Praca konkursowa w głosowaniu nad przyznaniem II lub III Nagrody pieniężnej uzyskała w ramach kryteriów oceny liczbę głosów (punktów) 4 (cztery) na 11 głosujących Sędziów. Głosowanie dotyczyło dwóch Prac o Numerach identyfikacyjnym Uczestnika 008 i 007.
PREZENTACJA III NAGRODA
Praca konkursowa 008




CZĘŚĆ OPISOWA Praca konkursowa 008
Opracowanie studialne do Pracy konkursowej 008




WYRÓŻNIENIE
Nagroda pieniężna w formie wyróżnienia w wysokości 15 000 zł brutto zostaje przyznana:
Pracy konkursowej o Numerze identyfikacyjnym Uczestnika 002
(Numer nadany przez Sekretarza Konkursu: 005)
Uczestnik Konkursu samodzielnie biorący udział w Konkursie:
WXCA Group Sp. z o.o.
ul. Bracka 18/62
00-028 Warszawa
Skład zespołu autorskiego:
Szczepan Wroński (Osoba posiadająca uprawnienia budowlane do projektowania w specjalności architektonicznej bez ograniczeń wymagana warunkami Konkursu), Marcin Kitala, Jakub Matela, Mateusz Sokołowski, Małgorzata Bonowicz, Jakub Kołomański, Wojciech Januszczyk, Anna Nowokuńska – Maksymiuk, Michał Gursztyn
Informacja i opinia o Pracy konkursowej 002
Praca przemyślana i wnikliwa, szanująca historyczny układ komunikacyjny i szczegółowo traktująca problematykę dostępności. Wyróżnia się szlachetna i dojrzała propozycja pawilonu, harmonijnie wpisująca się w zespół Kampusu oraz spójny, estetyczny i wielowątkowy system identyfikacji wizualnej. Wątpliwości budzi mnogość typów posadzek/nawierzchni oraz granice pomiędzy nimi, w szczególności granice posadzek/nawierzchni biegnące przez środek głównego placu oraz przestrzeni pomiędzy Starym BUW oraz budynkami Porektorskim i Poseminaryjnym. Decyzje o nowych nasadzeniach pomijają uwarunkowania infrastrukturalne i konserwatorskie.
Uzasadnienie przyznania wyróżnienia Pracy konkursowej 002
Pracy nr 002 przyznano wyróżnienie za dojrzałe i wpisujące się w kontekst propozycje pawilonu, małej architektury oraz systemu informacji wizualnej.
Praca konkursowa w pierwszym głosowaniu nad wyborem Prac do dalszej oceny uzyskała w ramach kryteriów oceny liczbę głosów (punktów) 1 (jeden) na 10 głosujących Sędziów w związku z czym nie przeszła do dalszej oceny.
PREZENTACJA WYRÓŻNIENIA
Praca konkursowa 002




CZĘŚĆ OPISOWA Praca konkursowa 002
Opracowanie studialne do Pracy konkursowej 002




WYRÓŻNIENIE
Nagroda pieniężna w formie wyróżnienia w wysokości 15 000 zł brutto zostaje przyznana:
Pracy konkursowej o Numerze identyfikacyjnym Uczestnika 003
(Numer nadany przez Sekretarza Konkursu: 004)
Uczestnicy Konkursu wspólnie biorący udział w Konkursie:
- Patryk Gwiazda
ul. Ogrody Bielawy 3
05-520 Konstancin-Jeziorna - Przemysław Tymoszuk
ul. Czynszowa 1/21
03-417 Warszawa
Skład zespołu autorskiego:
Przemysław Tymoszuk (Osoba posiadająca uprawnienia budowlane do projektowania w specjalności architektonicznej bez ograniczeń wymagana warunkami Konkursu), Patryk Gwiazda, Dominika Majewska
Informacja i opinia o Pracy konkursowej 003
Praca wyróżnia się próbą zdefiniowania na nowo głównych przestrzeni publicznych Kampusu. Przedłużony aż po fasadę Starego BUW, pozbawiony zieleni główny plac staje się jednak zbyt monumentalny i nieprzyjazny, a pozbawione śladów jezdni chodniki z wielkoformatowych płyt w sposób radykalny zmieniają percepcję przestrzeni.
Uzasadnienie przyznania wyróżnienia Pracy konkursowej 003
Pracy nr 003 przyznano wyróżnienie za wnikliwą i inspirującą koncepcję strefowania zieleni na terenie Kampusu.
Praca konkursowa w pierwszym głosowaniu nad wyborem Prac do dalszej oceny uzyskała w ramach kryteriów oceny liczbę głosów (punktów) 4 (cztery) na 10 głosujących Sędziów w związku z czym przeszła do dalszej oceny. Praca konkursowa w drugim głosowaniu nad wyborem Prac do przyznania I, II i III Nagrody uzyskała w ramach kryteriów oceny liczbę głosów (punktów) 2 (dwa) na 10 głosujących Sędziów w związku z czym nie przeszła do dalszej oceny. Głosowanie dotyczyło dwóch Prac o Numerach identyfikacyjnym Uczestnika 008 i 003.
PREZENTACJA WYRÓŻNIENIA
Praca konkursowa 003




CZĘŚĆ OPISOWA Praca konkursowa 003
Opracowanie studialne do Pracy konkursowej 003





